Estudio Iturbide, ubicado en la ciudad de México y obra del Taller de Arquitectura Mauricio Rocha + Gabriela Carrillo, fue merecedor del Gran Premio de la Bienal Panamericana de Arquitectura de Quito (BAQ2020). Según el jurado calificador es una pieza arquitectónica notable y una casa que es una celebración del cielo.
Fallo del jurado: “El proyecto es una caja constreñida en un espacio urbano que ha sido diseñado con una paleta de materiales limitada aunque con tremenda creatividad y variedad. Estudio Iturbide plantea tres grandes salas apiladas verticalmente y situadas entre dos patios interiores. La experiencia de pasar de un paisaje urbano denso y no descriptivo a este rico espacio lo hace sentir como un oasis. De alguna manera, transporta al usuario a otro mundo a través de su atmósfera única. La exquisita atención de Mauricio Rocha a los detalles, hace de la casa una celebración del cielo y su poderosa obra de ladrillos lo convierte en una pieza arquitectónica notable”.
EL ESTUDIO
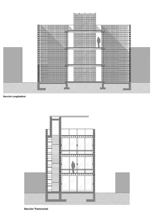
En un terreno de 7m × 14m en el Barrio del Niño Jesús y a solo algunos pasos de la casa de la fotógrafa Graciela Iturbide (madre de Manuel Rocha) surge una pequeña torre de apenas tres niveles que extruye de manera literal sus medidas en planta para convertirse en una sólida pieza de ladrillo de arcilla que se de-construye ante su propia materialidad en muy finas y casi imperceptibles tensiones de acero.

En su interior tres planos de madera, concreto y mármol aparecen tensados de un lado a otro creando un par de vacíos de múltiples alturas, seguramente plagados en un futuro cercano por unos patios con jardines, autoría de su propietaria.
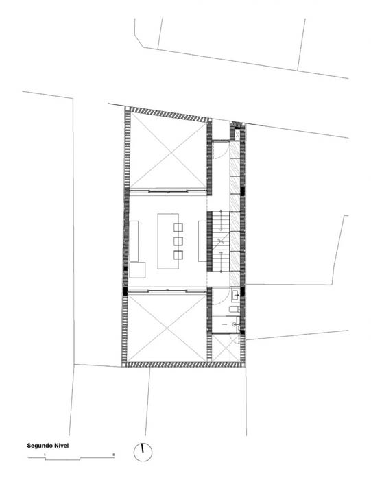
Es decir, el estudio se desarrolla en el centro de la parcela. Tiene tres niveles que albergan en la planta baja una sala de recepción de carácter más público, otro salón más privado, más familiar, y en la segunda y última planta se sitúa el estudio de la artista, ganando por tanto en privacidad a medida que se asciende. Los dos patios interiores ajardinados se disponen tras la fachada principal y al fondo del terreno.
Sus fachadas interiores insinúan de manera casi imperceptible las condiciones de las colindancias que las rodean. Las aberturas creadas entre las piezas cerámicas de la envolvente garantizan una correcta ventilación y crean un juego de luces y sombras, cambiantes a lo largo del día, que enriquece los espacios interiores.
Los servicios, las circulaciones y el gran librero se agrupan en el elemento vertical que se integra a los muros contenedores para prácticamente desaparecer y solo darle cuerpo al volumen de barro.
Los autores afirman que es una pieza que ante todo buscó el silencio, la síntesis, el uso continuo, repetitivo y casi obsesivo de un solo material. Aprovechó de manera estratégica su “forma” y proporciones para desaparecer el concreto de su estructura y volverse casi auto-portante.
FICHA TÉCNICA
Arquitectura: Taller de Arquitectura Mauricio Rocha + Gabriela Carrillo. Colaboradores: Arq. Pavel Escobedo, Arq. Esterlina Campuzano, Arq. Elizabeth Waites, Arq. Enrique Ibarra. Construcción: Rafael Carrillo – Taller 499. Ingeniería Estructural: Grupo SAI Gerson Huerta – Ingeniería Estructural Sismorresistente. Instalación Eléctrica e Hidráulica: Ing. Tomás Rodríguez.














